Salle de réception avec habitation et extérieur sur 2738m2A vendre

Immeuble à usage multiple Saint-léger

Faire offre à partir de 450 000€

En quelques mots

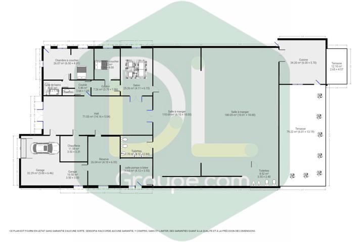
Contact : Gabin Rufin - 0472/13.02.17By B2B DL GroupeSitué à quelques pas des axes routiers et de toutes commodités, la salle de réception "Le Cadichon" érigé sur 27ares en activité depuis de nombreuses années … sa renommée et réputation dans la région d`Estaimpuis. Parfait pour mariage, communion, anniversaire et café/bar. Le bien se compose : d`une salle de réception de [..]
Contact : Gabin Rufin - 0472/13.02.17
By B2B DL Groupe

Situé à quelques pas des axes routiers et de toutes commodités, la salle de réception "Le Cadichon" érigé sur 27ares en activité depuis de nombreuses années … sa renommée et réputation dans la région d`Estaimpuis. Parfait pour mariage, communion, anniversaire et café/bar.

Le bien se compose : d`une salle de réception de 300m² desservant : un hall d`entrée de 70m², une première salle de 110m² avec coin bar et toilettes H/F, une seconde salle attenante de 180m² avec coin bar et toilettes, ces deux salles sont modulable.

Une cuisine professionnelle (hotte, friteuses, plaques de cuissons diverses, fours, lave-vaisselle, plans de travail et rangements inox, …).

Un grand garage de 42m² avec de nombreux espace de rangements, une réserve de 25m², une salle pour les pompes à bière, une chambre froide.

Un espace privé composé d`un salon, deux chambres, une salle de bain rénovée et un WC séparé. Une terrasse privative.

Extérieur : Parcelle totale de 2738m², belle terrasse moderne, une plaine de jeux, terrains de pétanque, plusieurs emplacements de parking privatifs.

Composition : TOP SECTEUR, libre de tout commerce, toiture entièrement rénovée, chauffage central au mazout avec soufflerie, un second chauffage pour l`espace privatif, châssis double vitrage (BOIS-PVC), vendu entièrement vidé ! AFFAIRE EXCEPTIONNEL !

FAIRE OFFRE A PARTIR DE 450.000€

Publicité à caractère non contractuel et ne constituant pas une offre.
Les propriétaires se réservent le droit de décision, d`acceptation ou non sur toute(s) offre(s) soumise(s) pour leur bien.
Lire plus

Situation

  • Adresse : Saint-léger

Détails

  • Ref : 6608376
  • Type : Commerces et bureaux
  • Prix : 450 000€
  • Etat général : Bon état
  • Garage(s): + 1
  • Cuisine : super-équipée
  • RC : 2337€
  • Chauffage : air pulsé au gaz

  • Habitation de 400m2
  • Terrain de 2738m2
  • 4 façades

Energies

  • Conso Spécifique 506 KwH/m².an
  • Conso théorique totale 48850 KwH/an
  • N° cert. 20211201018660

A proximité

Environnement

calme, campagne

Commodités

Boutiques : oui

Transport en commun : oui

Ecoles : -

Salle de Sport : oui

Autoroute : oui

Orientation

Du jardin : sud

De la terrasse : sud

Envoyer à un ami

*Aucune information n'est enregistrée sur ce formulaire

  • DL Groupe - Mouscron 056
  • +32 56 34 00 04
  • Rue de Menin, 400 - 7700 Mouscron
Agence mouscron

Je veux visiter

Je suis déjà propriétaire d'un bien
Je reconnais avoir pris connaissance de la  politique de confidentialité et des conditions de respect de la Vie Privée

Vos coups de coeur

# Suggestions