






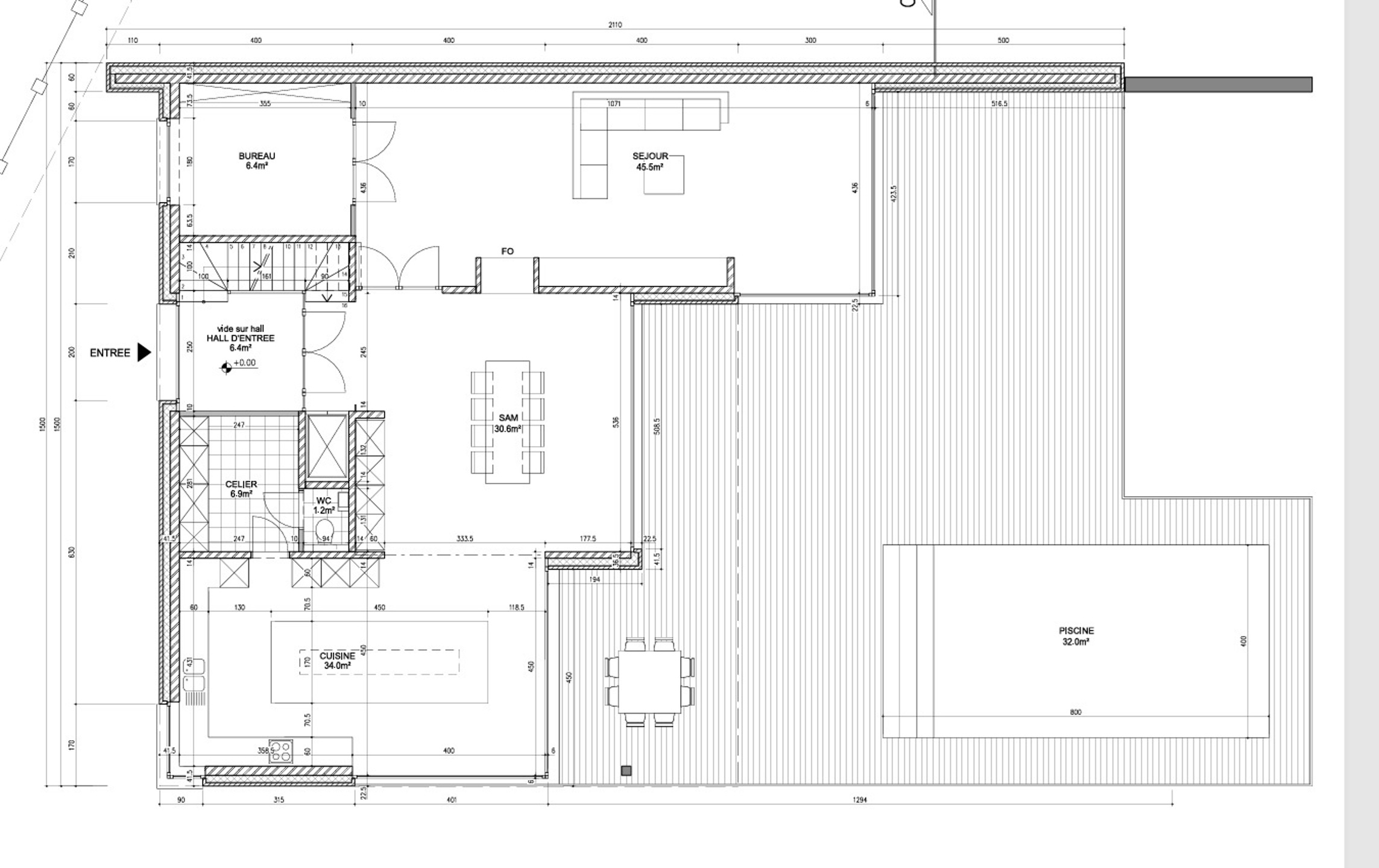
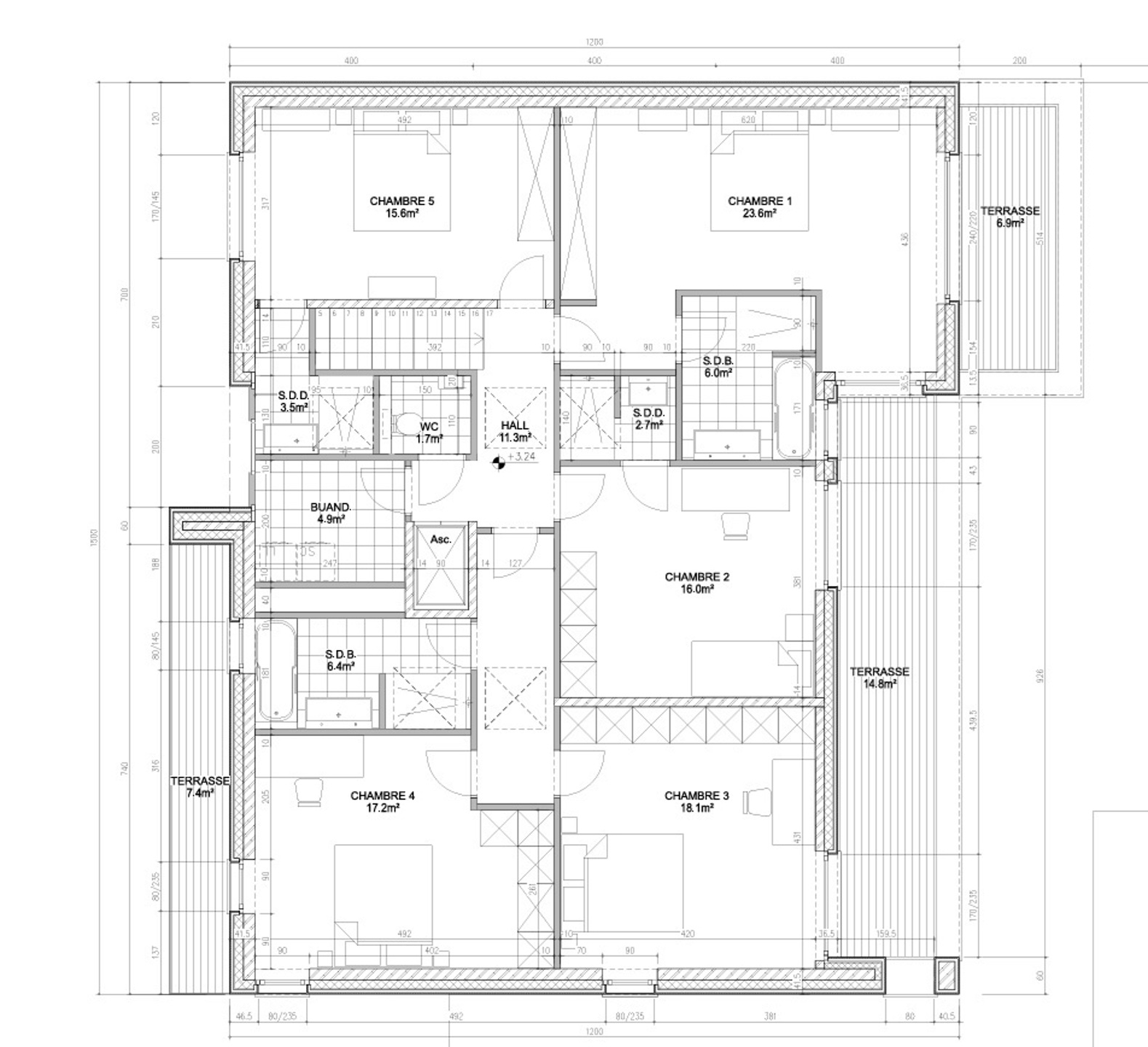
À Tubize, dans un quartier résidentiel calme et verdoyant, ce terrain de 11 ares orienté sud-ouest constitue une opportunité rare. Il bénéficie d’un permis de bâtir déjà octroyé pour une villa contemporaine de +/- 450 mètres répartis sur trois niveaux, aux lignes épurées et aux volumes généreux.
Le projet prévoit cinq chambres, quatre salles d’eau, un séjour spacieux et lumineux avec de grandes baies vitrées, un bureau séparé, une piscine, un ascenseur, un garage ainsi qu’un espace avec entrée indépendante, idéal pour une profession libérale, un studio ou une maison kangourou. Conçu pour offrir une grande flexibilité, ce bien s’adapte aussi bien à une grande famille qu’à une activité professionnelle ou à un projet intergénérationnel.
L’orientation idéale, le cadre verdoyant et la possibilité de construire sans attendre grâce au permis déjà accordé en font un bien particulièrement attractif. Une opportunité à ne pas manquer.
Publicité à caractère non contractuel et ne constituant pas une offre.
Les propriétaires se réservent le droit de décision, d`acceptation ou non sur toute(s) offre(s) soumise(s) pour leur bien.
calme, résidentiel
Boutiques : -
Transport en commun : -
Ecoles : -
Salle de Sport : -
Autoroute : -
Du jardin : sud ouest