Maisons 3 chambres avec jardin et garageA vendre

Maison Mouscron herseaux

349 259€

En quelques mots

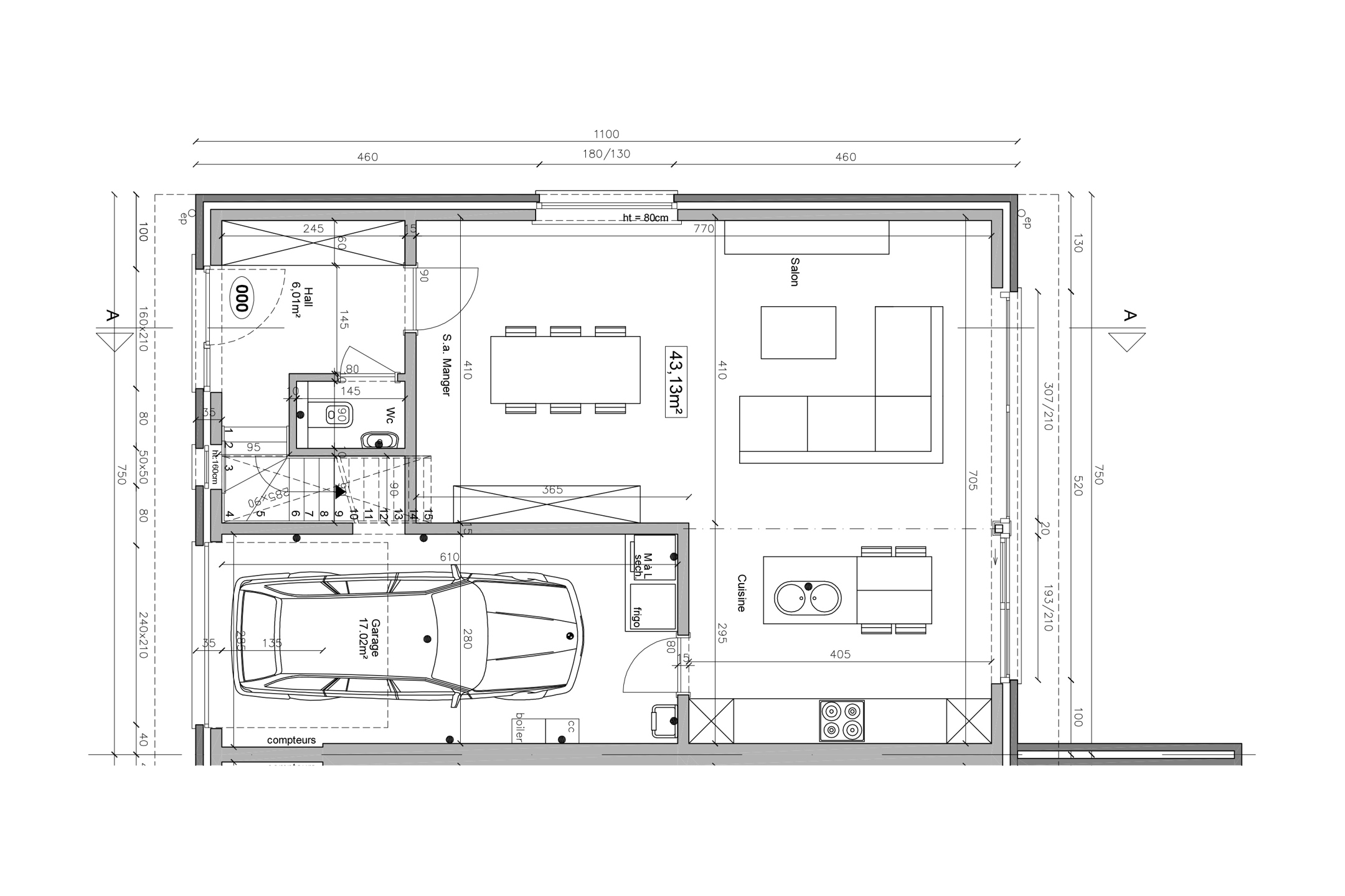
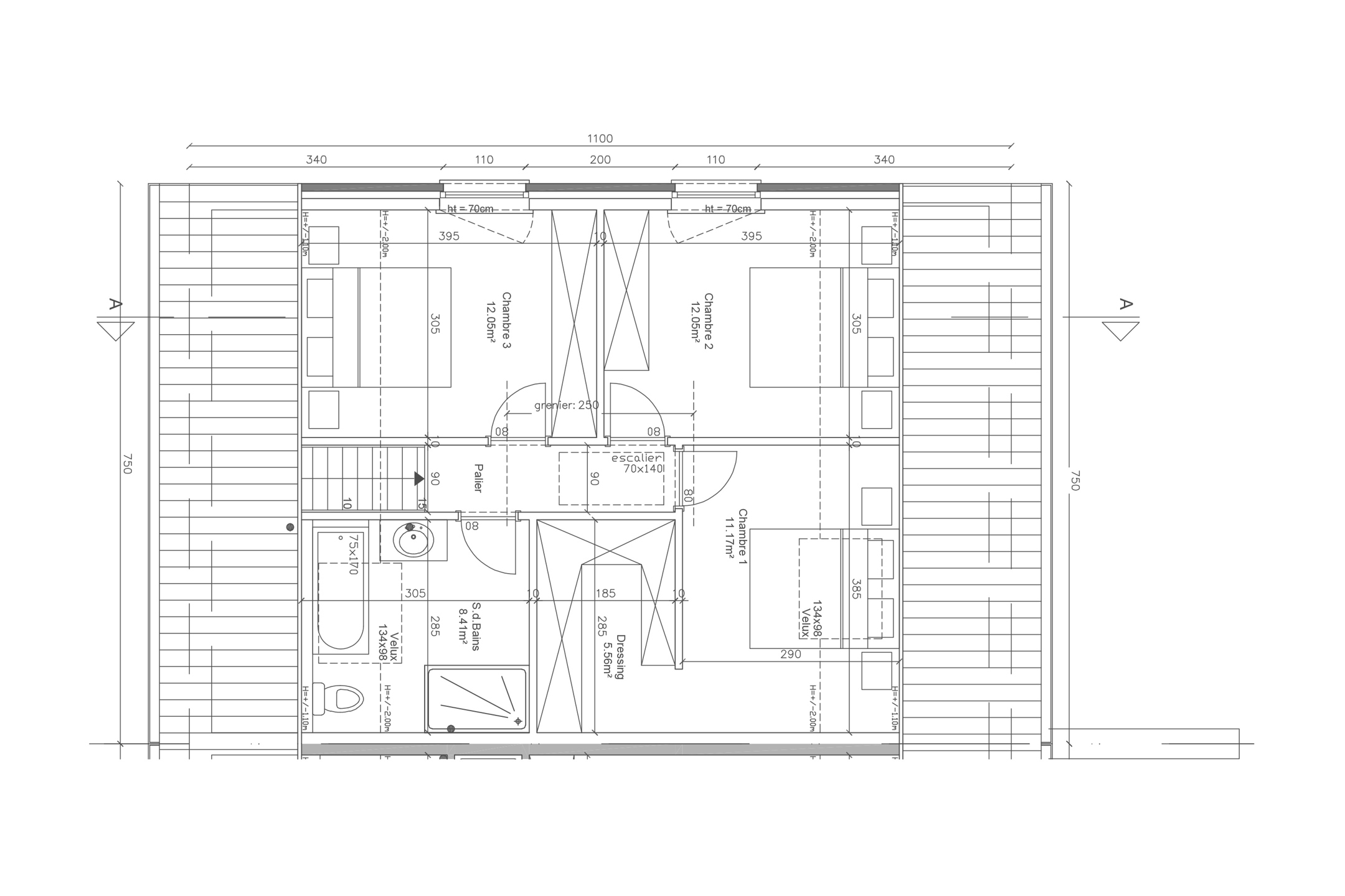
Maison 3 chambres avec jardin, garage et parking à Herseaux Prestations- Agencement - Rez-de-chaussée : hall d`entrée, WC séparé avec lave-mains, séjour avec cuisine ouverte VERVENNE- Agencement - Etage : 3 chambres dont une avec dressing et salle de bains avec douche, baignoire, meuble vasque et WC- Espaces extérieurs : terrasse carrelée et jardin clôturé non engazonné- Confort et [..]

Maison 3 chambres avec jardin, garage et parking à Herseaux

Prestations
- Agencement - Rez-de-chaussée
: hall d`entrée, WC séparé avec lave-mains, séjour avec cuisine ouverte VERVENNE
- Agencement - Etage : 3 chambres dont une avec dressing et salle de bains avec douche, baignoire, meuble vasque et WC
- Espaces extérieurs : terrasse carrelée et jardin clôturé non engazonné
- Confort et commodités : peinture, armatures d’éclairage, garage, parking privatif en façade, panneaux solaires, groupe hydrophore

Finitions
- Menuiseries
: châssis PVC double-vitrage, escalier en hêtre, porte de garage motorisée
- Chauffage : chauffage central au gaz, chaudière, radiateurs et thermostat
- Ventilation : VMC double flux
- Revêtements de sol : carrelage dans la pièce de vie et la salle de bain, parquet dans les chambres, carrelage anti-graisse dans le garage

PEB visé : A

Livraison à l`acte

Frais de raccordements compris dans le prix

Prix affichés hors frais - Vente sous régime des droits d`enregistrement (12,5 %) sur le terrain, éligible à 3 % sous conditions, et de la TVA sur la construction (21 %)

Renseignements et visite : Alexandra au +32 472 27 03 42

Retrouvez toutes les informations sur ce projet sur notre site www.immoaplus.be

Les surfaces indiquées ne sont pas des surfaces habitables mais des surfaces brutes, selon le code de mesurage appliqué en Belgique
Publicité à caractère non contractuel et ne constituant pas une offre
Les propriétaires se réservent le droit de décision, d`acceptation ou non sur toute(s) offre(s) soumise(s) pour leur bien

Lire plus

Situation

  • Adresse : Mouscron herseaux

En Vidéo

Détails

  • Ref : 7000066
  • Type : Maison/Villa
  • Prix : 349 259€
  • Chambre(s) : 3
  • Etat général : Neuf
  • Salle de bain : 1
  • Garage(s): 1 + 1
  • Cuisine : équipée
  • Chauffage : gaz (chau. centr.)

  • Séjour de 43.13m2
  • Habitation de 142m2
  • Terrain de 416m2
  • 3 façades

Energies

  • Conso théorique totale 23384 KwH/an
  • N° cert. 20250709001000
  • Electricité oui, conforme

A proximité

Environnement

,

Commodités

Boutiques : oui

Transport en commun : oui

Ecoles : oui

Salle de Sport : -

Autoroute : oui

Orientation

Du jardin : sud

De la terrasse : sud

Envoyer à un ami

*Aucune information n'est enregistrée sur ce formulaire

  • Immo A+ Mouscron
Agence

Je veux visiter

Je suis déjà propriétaire d'un bien
Je reconnais avoir pris connaissance de la  politique de confidentialité et des conditions de respect de la Vie Privée

Vos coups de coeur