











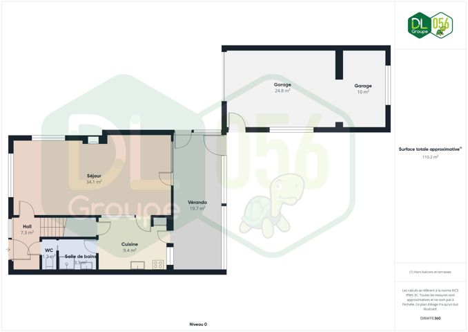
Au REZ : Un hall d’entrée avec escalier apparent et espace vestiaire, un lumineux séjour (salon et salle à manger) de 34m2 avec feu au bois ouvert, une cuisine semi-équipée attenante (double évier, hotte, frigo, rangements intégrés), une salle de bains composée d’une douche, d’un meuble lavabo, d’un sèche-serviette, d’un WC, une véranda offrant une agréable vue sur l’extérieur.
Au 1er étage : Hall de nuit desservant 3 chambres à coucher de 23m2, 20m2 et 8m2.
Au 2ème étage : Grenier offrant la possibilité d’aménager en une à deux chambres supplémentaires, accessible par un escalier escamotable situé sur le hall de nuit.
Extérieur : Une grand allée de garage pouvant accueillir 3 véhicules, un grand garage avec espace buanderie, un jardin clôturé.
Caractéristiques :
Maison 3 façades située dans un secteur calme, proche de toutes commodités (écoles, transports en communs, commerces, axes routiers, …), chauffage central au gaz avec chaudière à condensation de la marque « Vaillant », châssis en PVC double vitrage avec persiennes et châssis en bois simple vitrage avec persiennes au 1er, carrelage intégral au REZ, citerne d’eau de pluie avec pompe, porte de garage sectionnelle motorisée, nouvelle plate-forme, BEAUX VOLUMES (224M2) !
Publicité à caractère non contractuel et ne constituant pas une offre.
Les propriétaires se réservent le droit de décision, d`acceptation ou non sur toute(s) offre(s) soumise(s) pour leur bien.
calme, résidentiel
Boutiques : oui
Transport en commun : oui
Ecoles : oui
Salle de Sport : oui
Autoroute : oui
Du bâtiment : sud-est
Du jardin : sud est
De la terrasse : sud-est