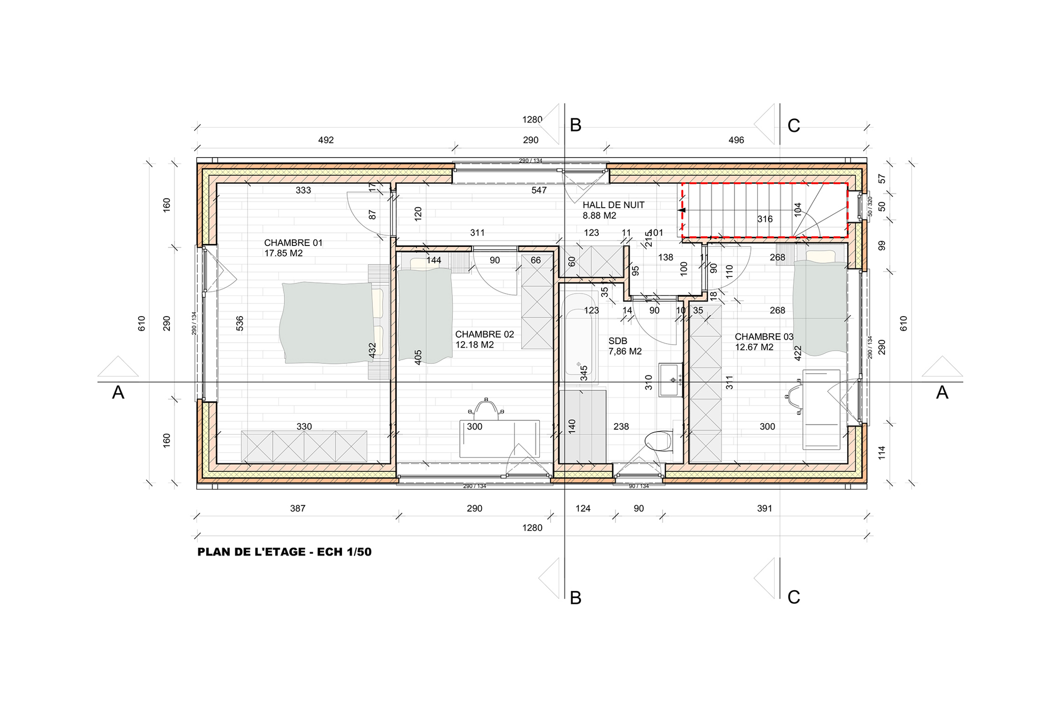
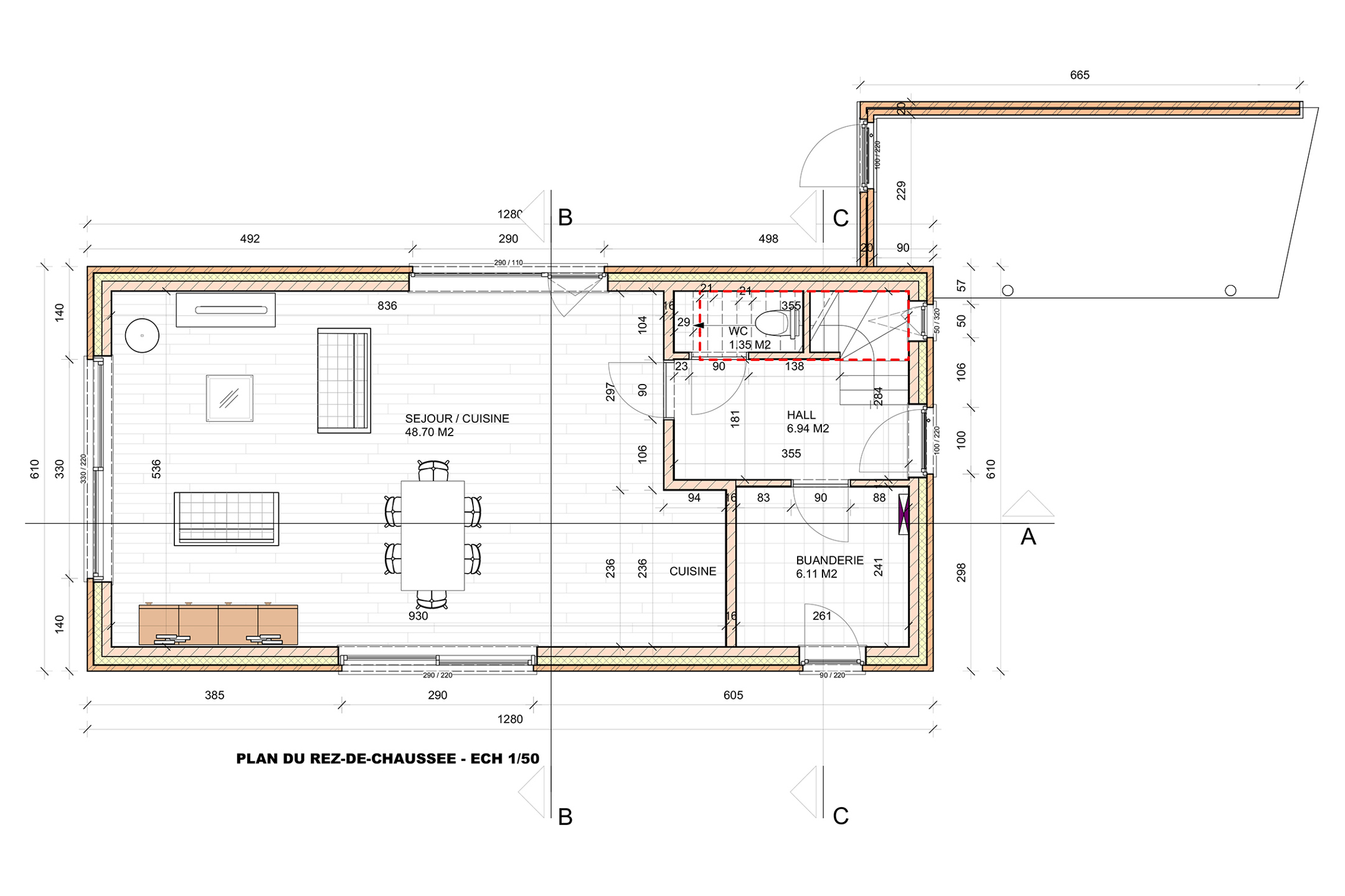
Maison 3 chambres avec vue sur les champs à 15 minutes de TournaiPrestations- Agencement (RDC) : hall d`entrée avec wc séparé, buanderie et accès à l`étage, séjour avec espace cuisine (cuisine non comprise)- Agencement (étage) : hall de nuit desservant trois chambres et une salle de bain avec baignoire, douche, meuble vasque et WC, grenier accessible via un escalier escamotable- [..]
Maison 3 chambres avec vue sur les champs à 15 minutes de Tournai
Prestations
- Agencement (RDC) : hall d`entrée avec wc séparé, buanderie et accès à l`étage, séjour avec espace cuisine (cuisine non comprise)
- Agencement (étage) : hall de nuit desservant trois chambres et une salle de bain avec baignoire, douche, meuble vasque et WC, grenier accessible via un escalier escamotable
- Espaces extérieurs : terrasse, jardin
- Confort et commodités : place de parking et carport à l`avant de la maison, 8 panneaux photovoltaïques
Finitions
- Menuiseries : châssis PVC double vitrage
- Chauffage : pompe à chaleur, chauffage au sol, radiateurs à l`étage
- Ventilation : ventilation simple flux
- Revêtements de sol : carrelage au rez-de-chaussée ainsi que dans la salle de bain et WC au 1er étage, parquet à l`étage
Livraison à l`acte
PEB visé A
Prix affiché hors frais - Vente sous régime des droits d’enregistrement (12,5 %), éligible à 3 % sous conditions, sur le terrain et de la TVA (21%) sur la construction, éligible à 6 % sous conditions.
Renseignements et visite : Alexandra au +32 472 27 03 42
Retrouvez toutes les informations sur ce projet sur notre site www.immoaplus.be
Les surfaces indiquées ne sont pas des surfaces habitables mais des surfaces brutes, selon le code de mesurage appliqué en Belgique.
Publicité à caractère non contractuel et ne constituant pas une offre.
Les propriétaires se réservent le droit de décision, d`acceptation ou non sur toute(s) offre(s) soumise(s) pour leur bien.
Lire plus